WineryValpolicella

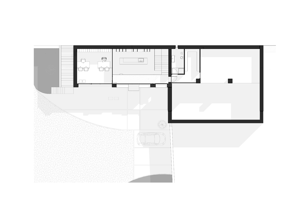
Nel cuore della Valpolicella, il progetto per uno wine-shop con uffici e ambienti di accoglienza.

 

Dimensioni:
420 m², complessivi
Anno:
2014
Credits:
Photo Studio mb²

rustico 

render 

render

render 

render

render